screenreader.back to home

BSBO

Herentals

Lagere school voor leerlingen van het buitengewoon onderwijs.

Het ontwerpen van een lagere school voor leerlingen met een licht mentale achterstand (type 1) en leerlingen met serieuze gedragsproblemen of sociaal-emotionele problemen (type 3) heeft haar eigen specifieke werking en programma. Een duidelijke, leesbare structuur moet een geborgen gevoel aan haar leerlingen geven. De architectuur mag niet provoceren maar moet rust en harmonie uitstralen. Tegelijkertijd heeft het gebouw nood aan een eigen identiteit, één waarmee de leerlingen zich graag vereenzelvigen. De school moet voldoende ruimte en licht bieden om een optimaal comfort en een gepaste sfeer te creëren zodat de leerlingen er zich thuis voelen.

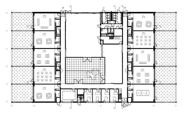
Het schoolontwerp is opgebouwd uit twee parallelle klassenvleugels met daartussen een overdekte binnenplaats. De binnenplaats heeft een cruciale rol in het functioneren van de school. Ze is het hart van de school en doet dienst als circulatiezone, speelplaats, turnzaal, refter, theater, vergaderzaal, feestzaal, enzovoort. Hier wordt de gemeenschapszin het sterkst gearticuleerd. De binnenplaats is dubbel zo hoog als de klaslokalen en is samengesteld uit de polyvalente zaal, de oefenzaal kiné, het technisch blok en een patio. Rondom ligt de circulatie als een (omme-)gang. De daglichttoetreding in de binnenplaats gebeurt via de gevelvlakken van de patio en de achtergevel en via bovenlichten in de circulatieassen. Het daglicht in de polyvalente zaal en de oefenzaal kiné komt gefilterd binnen via doorschijnend policarbonaat wanden.

Tussen de twee klassenvleugels is een gestapelde serie lokalen opgespannen waarin administratie en de onderwijsgerichte diensten in ondergebracht zijn en zich tonen aan de straatkant. Door de eenvoudige opbouw kent het gebouw een heldere structuur. De school is bijgevolg zeer duidelijk leesbaar voor de ‘buitengewone’ bewoners/gebruikers. De doorgedreven transparantie van de binnenplaats maakt het gebouw intern zeer open, terwijl het zich naar de omgeving eerder gesloten toont. De architectuur van de school maakt een veelvoudig en creatief gebruik van de ruimte mogelijk en creëert een sfeer van samenhorigheid.

Het klaslokaal is een intieme plek waar de klas zich kan terugtrekken en waar elke vorm van afleiding geweerd wordt. Zo is er aan elke klas een omhaagde buitenruimte die als buffer fungeert naar de omgeving toe. Elke klas heeft rechtstreeks toegang tot zo’n eigen buitenruimte die bij mooi weer als een uitbreiding van het klaslokaal kan dienen. De betonnen pergolastructuur kadert per klaslokaal een private buitenruimte. Grote ramen brengen voldoende daglicht binnen.

Per klas wordt een time-out zone voorzien, een ruimte die rechtstreeks vanuit de klas toegankelijk is en waar eenvoudig opgesteld met het vaste meubilair en een gordijn of vouwpanelen.

Programma
Onderwijs
Status
Uitgevoerd
Thema
Teruggeven aan de maatschappij, De leegte – tussen-ruimte, Een (t)huis op schaal van zijn gebruikers
Bouwkost
€2.020.000
Start ontwerp
2007
Start uitvoering
2009
Einde uitvoering
2013
Opdrachtgever
GO! Gemeenschapsonderwijs
Oppervlakte
1.244m²
Fotograaf
Tim Van de Velde, Luca Beel
Plaats
Herentals
Procedure
In opdracht
Technieken
TECH 3
Stabiliteit
BAS

Niveau 0