screenreader.back to home

Hoofdkantoor Siat

Zaventem

Een nieuw hoofdkantoor en magazijn voor Siat.

Het hoofdkantoor van Siat in Zaventem weerspiegelt de unieke identiteit van het bedrijf, dat geworteld is in Afrika maar internationaal opereert. De architectuur en omgevingsaanleg zijn doordrongen van deze dualiteit. De site, een bedrijventerrein zonder historische gelaagdheid, krijgt betekenis door de verbinding met de tropische plantages van Siat. Dit wordt versterkt door een omgevingsaanleg die refereert aan de Afrikaanse context: een bebost grid, een rode gemalen bakstenen ondergrond en een landschappelijke opbouw die de link met de activiteiten van het bedrijf zichtbaar maakt. Binnen deze context lijkt het gebouw als een geland object, een plek waar verleden en toekomst elkaar kruisen. Een banaanvormige oprit leidt bezoekers langs dit landschap naar de ingang en versterkt de theatrale aankomstbeleving.

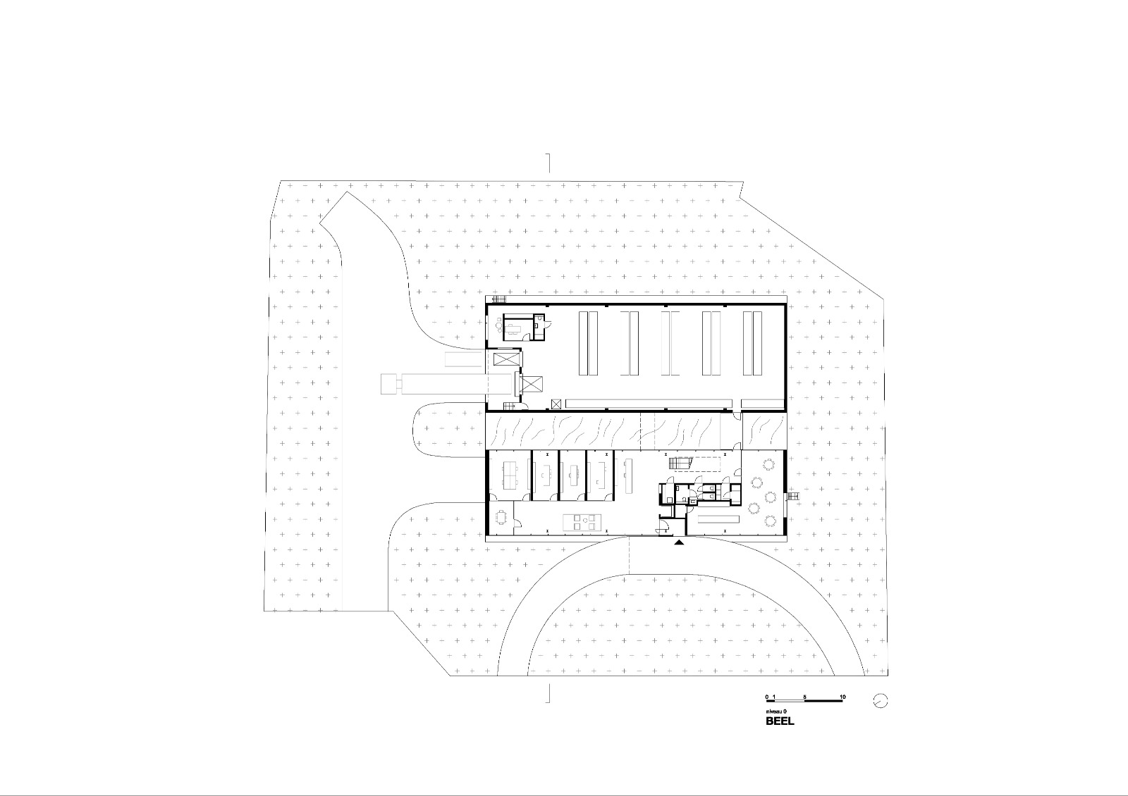
Het gebouw bestaat uit twee rechthoekige volumes – kantoren en magazijn – opgetild boven het maaiveld, met een halfondergrondse parking. Een centrale waterpartij en een imposante muur van groene natuursteen scheiden de volumes, terwijl een ‘oval office’ op het dak van het magazijn de connectie tussen management en bedrijfsvoering letterlijk verbindt. De kantoren kijken uit over een daktuin en de kruinen van de beplanting, waardoor het dagelijks werk verbonden blijft met de essentie van de onderneming.

De architectuur balanceert tussen openheid en geborgenheid. De begane grond opent zich naar de omgeving, terwijl de hogere verdiepingen een verstild zicht bieden op de kruinen van het groen. Het interieur weerspiegelt deze benadering met natuurlijke materialen en een heldere structuur: natuursteen in de inkomzone, witgeschilderde houten wanden, messing leuningen en vilten plafonds zorgen voor een warme en tijdloze uitstraling.

Dit hoofdkwartier is geen anoniem kantoorgebouw, maar een tastbare vertaling van Siat’s identiteit. Het gebouw en zijn omgeving brengen een subtiele dialoog tot stand tussen België en Afrika, tussen heden en toekomst, tussen industrie en natuur.

Programma
Kantoren
Status
Uitgevoerd
Thema
Het toekomen, De leegte – tussen-ruimte, Oog voor detail
Bouwkost
€6.221.900
Start ontwerp
2009
Start uitvoering
2012
Einde uitvoering
2013
Opdrachtgever
Fimave nv
Oppervlakte
3.365m²
Aannemer
Vanhout
Fotograaf
Luca Beel, Johnny Umans
Plaats
Zaventem
Procedure
In opdracht
Prijzen
‘Belgische Prijs voor Architectuur 2015’: finalist categorie niet residentiële gebouwen voor privaat gebruik | 'Iconic Awards Germany 2016’ categorie niet-residentieel
Technieken
Grontmij Vlaanderen
Stabiliteit
Grontmij Vlaanderen

Niveau 0

Niveau +1