screenreader.back to home

Hoofdkantoor VIB en bio-incubatoren

Zwijnaarde

Een nieuw hoofdkantoor voor het VIB en bio-incubatoren.

Algemeen

Het nieuwe gebouw, ontworpen door BEEL Architecten i.s.m. Modulo Architects en studiebureau Istema bestaat uit 8 verdiepingen en stelt zich op als poortwachter langs de E40. Het vormt een ankerpunt in het voorbijrazend landschap en bestendigt de verdere ontwikkeling van de achterliggende wetenschapscampus. De nieuwbouw wordt het uithangbord voor diverse gebruikers verbonden met het VIB en de biotech. Het langgerekt gebouw vormt voor de campus een buffer én gezicht naar de voorbijrazende autosnelweg.

Het is een toonaangevend gebouw, waar laagdrempeligheid en campusgerichtheid centraal staan. De primaire doelstelling van de bouwheer is een goed functionerend, flexibel en bouwtechnisch doordacht gebouw op te richten, kostenefficiënt en verzorgd. Het dient uitnodigend te zijn, innovatie uit te stralen, open te zijn en toch de nodige privacy en rust te omvatten voor de gebruikers.

De beeldkwaliteit streeft binnen de marges van repetitie en flexibiliteit, eigen aan de gevraagde labo- en kantooromgeving, toch naar een zekere innoverende identiteit en verbijzondering voor de campus. Het concept van de programmaverdeling /-stapeling in het nieuwe gebouw wordt mee vorm gegeven in de gevelarchitectuur.

De tweeledigheid binnen het programma van de bio-incubator versus de kantoren van het VIB, komt sterk tot uiting in het finale volume alsook in het gevelconcept.

De zuidgevel fungeert hierbij als bril, herkenningspunt, voor bezoekers en geeft het gebouw zijn identiteit. Deze gevel wordt op niveau van de incubatoren uitgewerkt als rigide raster en voor de kantoren geconcipieerd als een uitkragend scherp afgesneden vlak als kenmerkende periscoop in de volumewerking.

De oost- en westgevel zijn ifv. Het achterliggende programma eerder gesloten qua karakter. Deze geslotenheid versterkt het verticale statuut van het gebouw als dynamisch scherm langsheen de E40.

De noordgevel bestaat uit een transparant membraan, rondom de circulatieschijf, als signaalfunctie langsheen de E40. De gevelbekleding ligt als een huid rond het gebouw en past zich met zijn verschillende raamopeningen aan in functie van zijn oriëntatie en achterliggende functies. De materialiteit is sturend voor de eenvoud van detailleren, waardoor beeldkwaliteit en bouweconomie in dezelfde lijn liggen.

Belangrijkste troeven

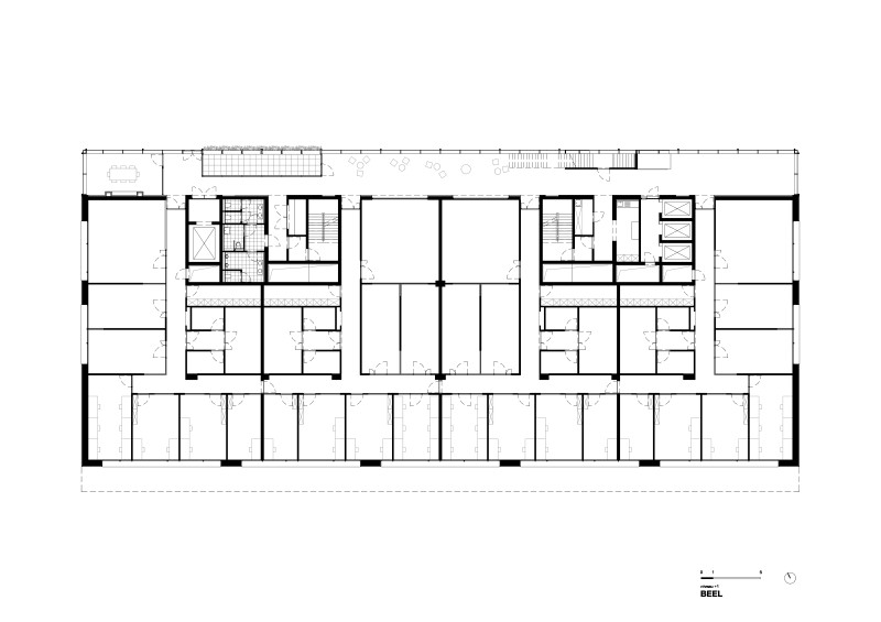
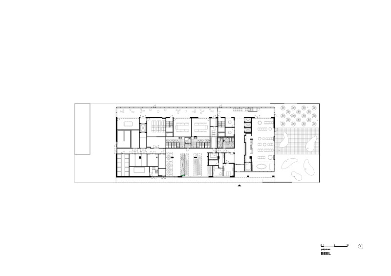
Alle verdiepen van de bio-incubator zijn gestoeld op eenzelfde principe, waarin voldoende flexibiliteit aan de dag wordt gelegd om tegemoet te komen aan de noden van de startups die erin worden ondergebracht. De voorgelegde inrichting van de modules vertrekt vanuit de gradiënt van daglichttoetreding.

De kantoren liggen in de 1ste lijn aan de gevel, daar zij het meeste daglicht behoeven. De labo’s liggen in 2e lijn en de support en berging, die geen daglicht behoeven liggen in 3e orde en worden centraal in de modules ondergebracht. Afhankelijk van de noden van de verschillende startups, kunnen de verschillende modules eenvoudig worden geschakeld en losgekoppeld.

Ook hier werkt de interactieve schil werkt als bindend element waar gemeenschappelijke functies worden ondergebracht, waar werknemers van de verschillende startups elkaar kunnen treffen, waar ruimte wordt gelaten voor kruisbestuiving, wisselwerking en informele ontmoetingen. Het gebouw is een functionele machine, waarin ook plaats wordt gemaakt voor cross-collaboration. Dankzij de interactieve schil zijn alle nodige elementen aanwezig om de bio-incubator te laten uitgroeien tot de creatieve en innovatieve hub die het beoogt te zijn.
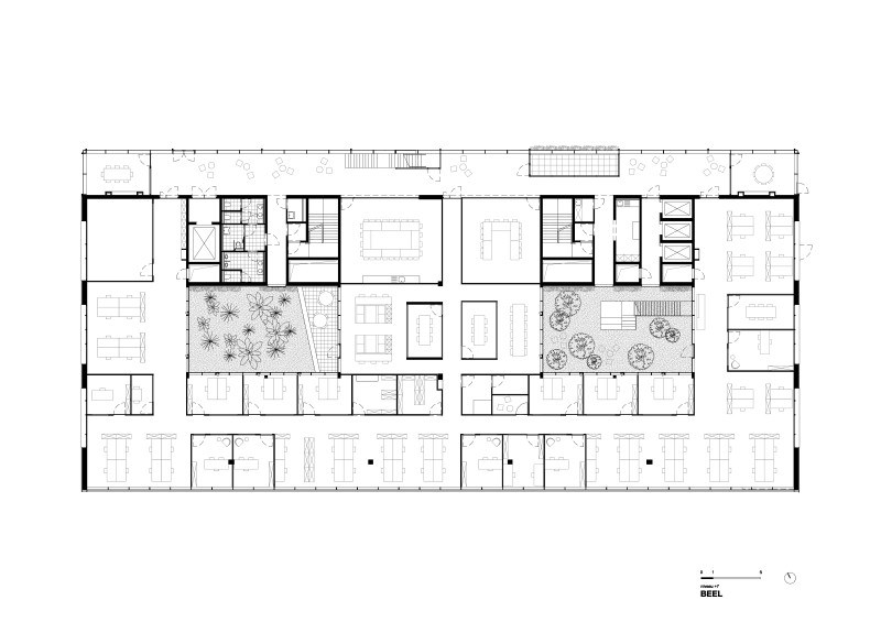
De hoofdkantoren van het VIB op de bovenste verdiepingen vormen door de uitsprong een periscoop over de wetenschapscampus. Door deze verschuiving wordt niet alleen het volume op spanning gezet, maar wordt ook ruimte geboden voor twee grote patio’s die licht en lucht geven aan de kantoren.

Materialiteit

Het Beeldkwaliteitsplan van de campus stelt gevelmaterialen in aardse tinten voorop. I.t.t. rode bakstenen van de overige gebouwen op de campus, wordt in complementariteit op de sobere geometrie van dit kopgebouw gekozen voor een maatwerk van goudgele keramische tegels. Niet alleen is dit een duurzame keuze voor zo’n hoogbouw, ook zorgt het voor de nodige uitstraling langs de E40. Het halfsteens verband maakt het geheel recalcitrant, brengt het gebouw terug op schaal en vormt een knipoog naar omliggende gebouwen in baksteen. Aan de zijde van de autosnelweg wordt tegen dit goudgele volume een glazen gordijngevel geplaatst dat niet alleen als billboard werkt, maar ook de circulatie en ontmoeting accommodeert.

De binnengevel van deze interactieve schil maakt en zet het gouden volume af t.o.v. de glazen pui en wordt uitgevoerd in goudgele vilt. Deze zorgt voor de nodige tactiliteit, warmte en akoestisch comfort. De schil wordt verder opgeladen door 5 inpandige proeftuinen, die de gebruikers niet alleen de mogelijkheid bieden om buiten te treden, maar met klimplanten langs de gevelnetten ook de beeldwaarde van het gebouw opwaarderen en linken met de biotech. De watervaltrappen die de verschillende etages linken worden geaccentueerd en brengen de nodige dynamiek en dialoog met de snelweg. Waar het gebouw zich aan de zijde van de autosnelweg zeer open en dynamisch vertoont, is de sobere rigiditeit van de gevel een weerspiegeling van het kantoor-en labowerk dat erachter schuilgaat. De plaatselijke geanodiseerde aluminium gevelafwerking van de periscoop vormt een scherp snijvlak.

Programma
Onderzoek, Kantoren
Status
Uitgevoerd
Thema
Innovatief programma, Kruisbestuiving, Oog voor detail
Bouwkost
€30.820.000
Start ontwerp
2019
Start uitvoering
2021
Einde uitvoering
2024
Opdrachtgever
VIB (Vlaams Instituut voor Biotechnologie) & PMV (Participatiemaatschappij Vlaanderen)
Oppervlakte
14.420m²
Aannemer
Cordeel; Jansenbuilding; Equans
Fotograaf
Stijn Bollaert, BEEL, Arnaud Tandt
Plaats
Zwijnaarde
Procedure
Wedstrijd laureaat
Ontwerpverband
BEEL Architecten i.s.m. Modulo Architects
Technieken
Istema
Stabiliteit
Establis
Akoestiek
De Fonseca

level 0

level +1

level +7