screenreader.back to home

KANAAL

Wijnegem

Reconversie van 19e eeuwse graansilo’s tot wooneenheden en kantoren.

Een waardevolle, 19e-eeuwse industriële locatie langs het Albertkanaal nabij Antwerpen (BE) wordt omgevormd tot een eigentijdse locatie voor gemengd gebruik. Naast werkplaatsen, museumruimte, kantoren en ondergrondse parkeergelegenheid wordt het grootste deel van de locatie omgezet in woonunits. BEEL Architecten is verantwoordelijk voor de transformatie van de silo's van de oude mouterij, een deel van het volledige ontwikkelingsproject.

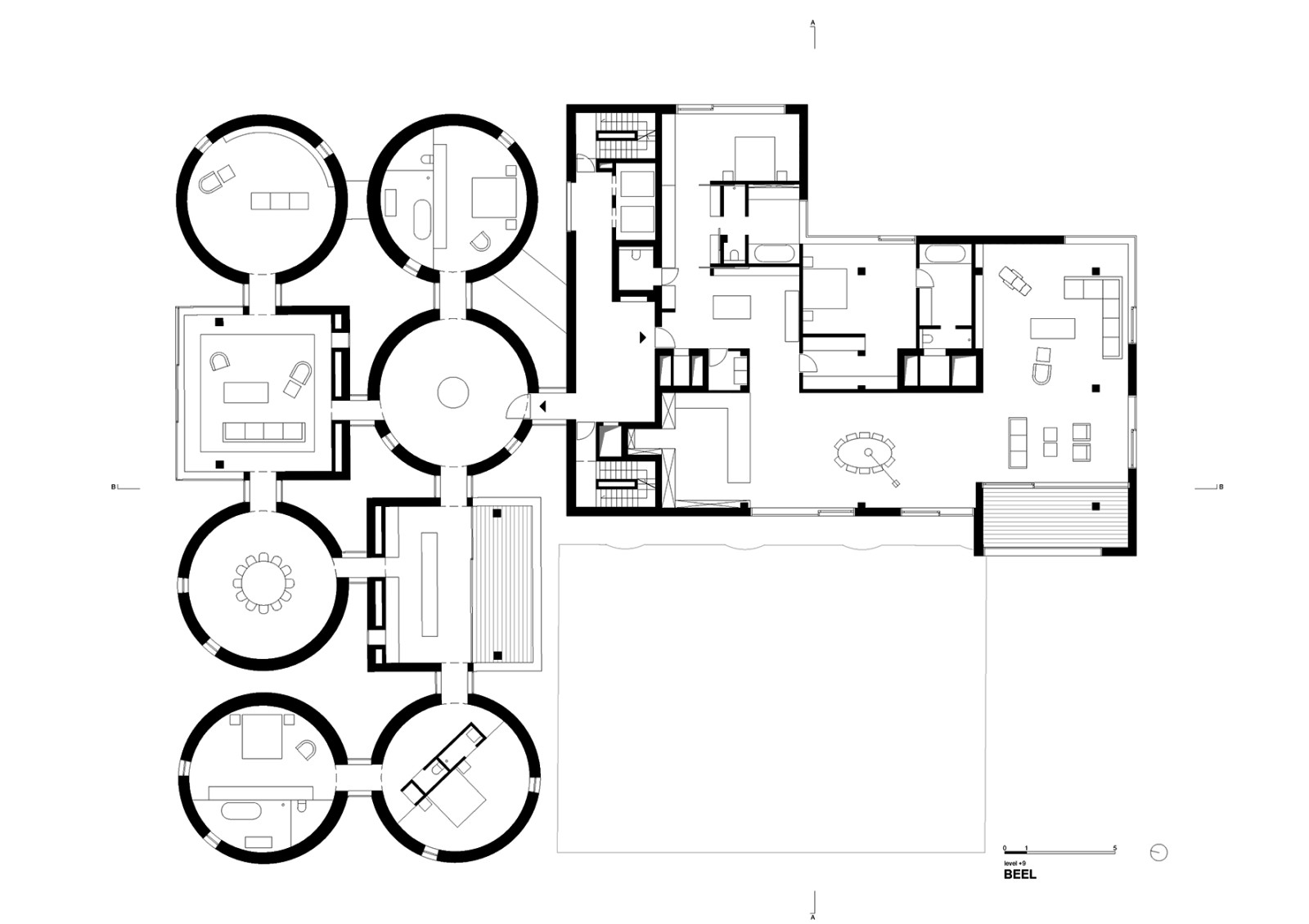
Grijze silo's

De opwaardering van de grijze silo's is een delicate opdracht. Het ontwerp in kwestie maakt het mogelijk dat de bestaande gebouwen blijven functioneren en geeft een nieuwe functie zonder het karakter van het silocomplex in gevaar te brengen.

Twee van de acht silo’s worden, over een hoogte van 31 en 28 meter, weggenomen en vervangen door een nieuw, slank, transparant silovolume. De zes resterende silo’s blijven behouden en worden voorzien van kleine openingen. Door deze ingreep ontstaan wooneenheden met telkens drie besloten ruimtes met cirkelvormig plan (de bestaande silo’s) en een open ruimte met vierkant plan (de nieuwe silo).

De openheid van de vierkante ruimte – waar de leefruimte wordt gesitueerd – laat het behoud van de gesloten massieve betonnen silo’s toe. De openingen in de bestaande silo’s volgen een structurele logica en omlijnen specifieke vergezichten.

Door nieuwe, transparante silo's aan tegenovergestelde zijden en in het midden van de bestaande silo's te plaatsen, blijven de contouren en soliditeit van het silocomplex behouden.

De onderste delen van alle bestaande silo's worden behouden en op een verhoogd platform geplaatst. Zo bieden ze ruimte voor een museum en toegang tot de wooneenheden. De grijze silo's zijn van elkaar gescheiden en waar nodig met elkaar verbonden door glazen bruggen.

Witte silo's

De bestaande witte silo’s worden om stabiliteitstechnische redenen weggenomen en vervangen door een nieuw woonvolume bovenop de bestaande ruimte ‘karnak’. Het nieuwe volume wordt geheel bekleed in wit/blank hout en vormt een helder contrast met de bestaande grijze silo’s. De beglazing is in zilver/witkleurig zonwerend glas en het houten schrijnwerk is in dezelfde kleurtint.

De nieuwe woonfunctie maakt het voortbestaan van het silocomplex mogelijk. De ingrepen en verbouwingen zorgen op hun beurt voor de implementatie van hedendaagse eisen naar comfort en veiligheid, verbeteren de bezonning van het complex en vormen een positief contrast met de bestaande constructie. De uitstraling en het beeld van de silo’s blijven hierbij behouden.

Programma
Kantoren, Residentieel
Status
Uitgevoerd
Thema
Circulair, Weerbarstig functioneel, Kruisbestuiving, Oog voor detail
Bouwkost
€16.150.000
Start ontwerp
2008
Start uitvoering
2013
Einde uitvoering
2017
Opdrachtgever
Idetex nv - Vervoordt r.e.
Oppervlakte
8.500m²
Fotograaf
Jan Liégeois, Piet-Albert Goethals, Laziz Hamani, Exelmans Graphics
Plaats
Wijnegem
Procedure
Wedstrijd laureaat
Prijzen
'FSC PROJECT AWARD 2015' categorie ‘Projectbouw’
Technieken
Botec
Stabiliteit
Studieburo Mouton
Akoestiek
Blasco

level +4

level +9