screenreader.back to home

Provinciaal Kunsthumaniora Hasselt

Hasselt

Nieuwbouw voor een kunstschool voor leerlingen van het secundair onderwijs in Hasselt.

Het nieuwe K-gebouw van de Provinciale Kunsthumaniora in Hasselt is opgevat als een open en verbonden structuur die de dialoog tussen verschillende kunstdisciplines stimuleert. De opbouw rond een centrale ingesloten patio zorgt voor een heldere organisatie van functies en brengt samenhang tussen de verschillende onderwijsruimtes. Grote glaspartijen en open circulatiezones creëren visuele verbindingen, waardoor de interactie tussen leerlingen en vakgebieden wordt versterkt zonder aan autonomie in te boeten.

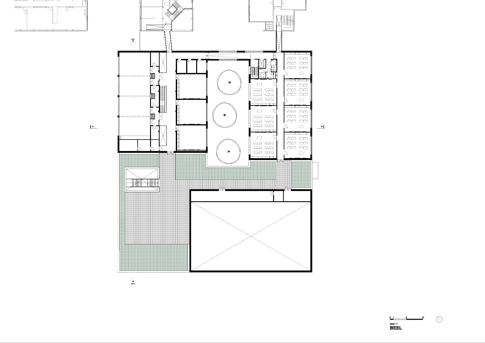
Het gebouw bestaat uit vijf clusters: de eetzaal, de sportzaal, de theaterklassen, de klassenvleugel en de ontmoetingsruimte, die in verbinding staat met de bibliotheek en studieruimte. Een glazen passerelle koppelt de nieuwbouw aan de bestaande gebouwen en verbindt oud en nieuw op een subtiele manier. Binnen deze structuur wordt de overgang tussen publieke en meer geborgen zones gradueel opgebouwd, waarbij de meest intieme leer- en studieruimtes zich dieper in het gebouw bevinden.

Flexibiliteit en multifunctionaliteit zijn essentieel in de opbouw. De sportzaal kan in drie afzonderlijke zalen worden opgedeeld, terwijl de vier theaterklassen samen een volwaardige theaterzaal vormen met een uitschuifbare tribune voor 120 toeschouwers. De polyvalente ruimte fungeert zowel als inkomzone, ontspanningsruimte en expositieruimte, terwijl de ontmoetingsruimte zich opent naar de speelplaats via grote glaspartijen, waardoor binnen- en buitenruimte in elkaar overlopen.

De akoestiek vormde een bijzondere uitdaging binnen dit ontwerp. Door een zorgvuldige plaatsing en clustering van de lokalen, in combinatie met specifieke materialen en bouwtechnieken, werd een balans gevonden tussen expressieve en stille ruimtes. Theaterklassen en muziekzalen zijn voorzien van zwevende vloeren en akoestisch absorberende wanden, terwijl de studieruimtes en bibliotheek baat hebben bij geluidswerende structuren om een rustige leeromgeving te garanderen.

Door de transparantie, gevarieerde circulatie en gelaagde opbouw nodigt het gebouw uit tot beweging en ontmoeting, zonder de nood aan afzondering uit het oog te verliezen. Het is een dynamische structuur waarin architectuur en onderwijs samenvloeien en waarin de ruimtelijke indeling niet alleen functioneel is, maar ook een actieve rol speelt in het stimuleren van creativiteit en samenwerking.

Extern gebruik

Naast de functie als onderwijsgebouw is het K-gebouw ontworpen voor een breed scala aan externe activiteiten. Door aparte toegangen kunnen de woordkunst- en dramalokalen, refter, foyer, sportzaal en polyvalente ruimte onafhankelijk worden gebruikt zonder de schoolwerking te verstoren. Strategische scheidingen en akoestische buffers voorkomen geluidshinder en vermenging van gebruikersgroepen.

De brede getrapte sokkel aan de speelplaats fungeert als tribune voor leerlingen, maar biedt ook mogelijkheden voor publieke optredens en evenementen. Zo wordt het K-gebouw niet alleen een inspirerende leeromgeving, maar ook een dynamische culturele infrastructuur die de school verbindt met haar stedelijke en creatieve context.

Programma
Onderwijs
Status
Uitgevoerd
Thema
Kruisbestuiving
Bouwkost
€8.058.520
Start ontwerp
2012
Start uitvoering
2014
Einde uitvoering
2015
Opdrachtgever
Scholen van Morgen
Oppervlakte
5.000m²
Aannemer
Houben
Fotograaf
Luca Beel, AG Real Estate
Plaats
Hasselt
Procedure
Wedstrijd laureaat
Ontwerpverband
TV BEEL - Mouton - Ingenium
Technieken
Ingenium
Stabiliteit
Studieburo Mouton
Akoestiek
D2S International

Niveau 0

Niveau +1