screenreader.back to home

Gebouw B campus KULAK

Kortrijk

Uitbreiding Katholieke Universiteit Leuven Campus Kortrijk: gebouw B

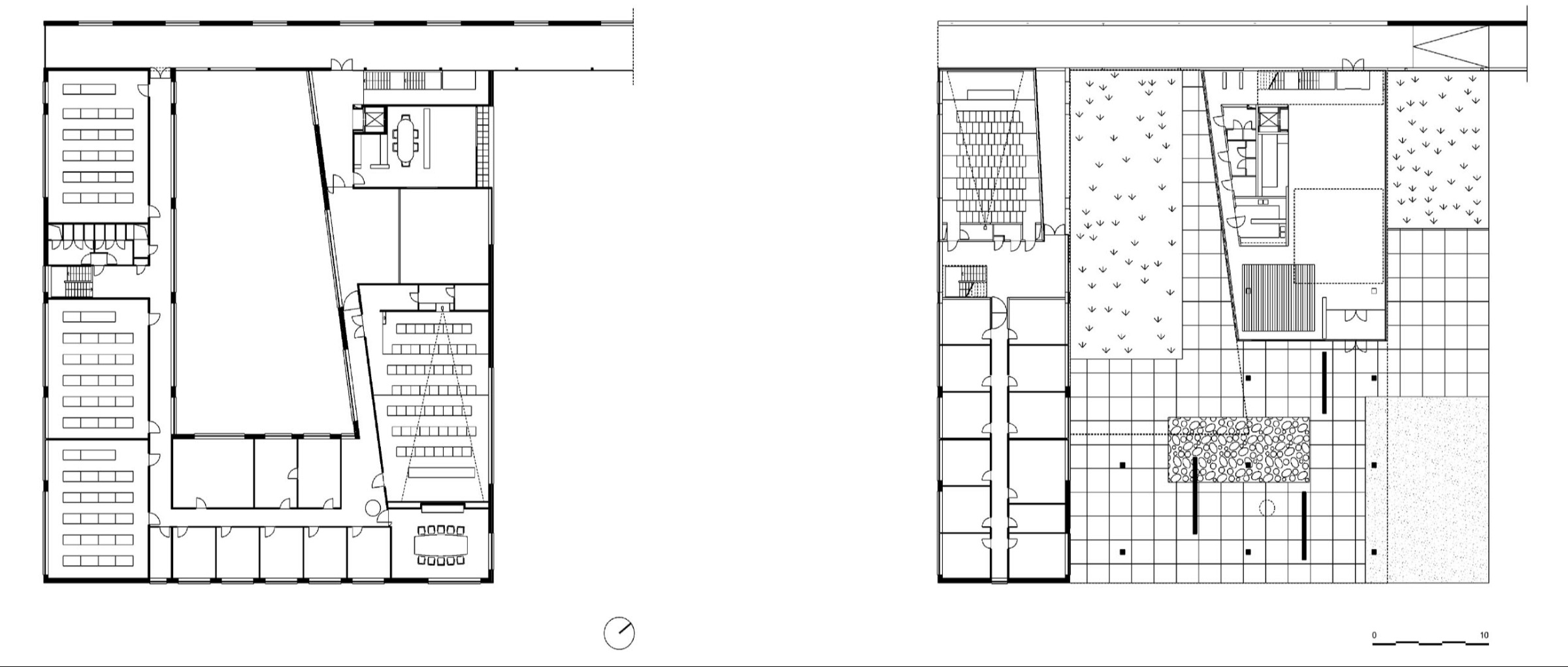
Masterplan, spina en gebouw B

Bij de wedstrijd, begin jaren 90, werd gevraagd een visie te ontwikkelen voor de verdere uitbouw van de campus, een onvoltooide site aan de rand van de stad, gebaseerd op een modulair groeimodel.

Het gebrek aan herkenbaarheid, leesbaarheid en structuur van het totale gebied werd versterkt door de toenmalige uitbreidingen die de voorziene groei sterk bemoeilijkten. De onvoltooide ‘spina’ tussen de twee gebouwen, de drager van het modulair systeem werd kortgesloten door de bouw van het rectoraat.

Het herintroduceren van de spina als verbindend maar ook scheidend element definieerde een vlakke, gemakkelijk te bebouwen zone tussen de spina en de weg en liet toe om de openheid van de helling te vrijwaren van verdere bebouwing.

Anders dan bij het oorspronkelijk ontwerp kon de campus nu een gezicht aan de straat krijgen. Het idee van een geïsoleerde uitdijende vlek in het landschap, zonder enige vorm van hiërarchie werd vervangen door een semipermeabele gevelwand aan de straat. De spina werd een helder en soepel hanteerbaar groeimodel.

De realisatie van gebouw B ging gepaard met de aankondiging van dit model.

Het inkomgebouw kreeg een zekere autonomie terwijl de spina garant stond voor een beschutte verbinding op de begane grond en een gesloten verbinding op de verdieping.

Een inkomgebouw functioneert echter pas als het in verbinding staat met alle elementen die het representeert. Dit is vandaag gerealiseerd door de spina 125 meter te laten groeien en de geneeskundefaculteit uit zijn isolement te halen.

De spina verbindt de verschillende onderdelen en wordt een ontmoetingsplaats. Een katalysator van communicatie en informatie tussen student, docent en bezoeker. Een bron van interdisciplinariteit.

Meer info over het masterplan van de KULAK, vind je hier.
Meer info over Gebouw C als deel van het masterplan KULAK, vind je hier.

Programma
Onderwijs
Status
Uitgevoerd
Bouwkost
€3.875.000
Start ontwerp
1991
Einde uitvoering
1994
Opdrachtgever
Katholieke Universiteit Leuven afdeling Kortrijk
Oppervlakte
2.000m²
Fotograaf
Jan Kempenaers, KULAK
Plaats
Kortrijk
Procedure
Wedstrijd laureaat
Stabiliteit
Paul France

plan +1 en plan 0