screenreader.back to home

Villa M in Z

Het terrein, een ruime plek in het bos. De vroegere moestuinen van een kasteel, door tuinmuren verdeeld in verschillende sferen en begroeiingen. Expliciete beperkingen waren hier nauwelijks aanwezig; het ontbreken van beperkingen bleek de enige beperking. Dit leidde tot de intentie om ‘bijna niets’ te doen: een elementair gebaar dat, in al zijn eenvoud, niet verstoort maar verstevigt.
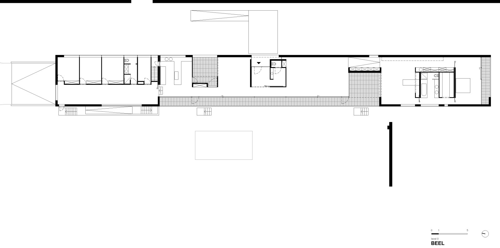
De krachtige neutraliteit van een lang verhoogd en éénvormig volume vormt de vertrouwde en vreemde aanvulling op het terrein. Een nieuwe bewoonde muur. Het omhulsel met zijn constante hoogte vormt, over zijn volle lengte, een tuingevel en creëert de sfeer van een bijkomende smalle buitenruimte.
In deze structuur worden de verschillende functies achter elkaar gerangschikt en met elkaar verbonden. Ze verkrijgen hun autonome relaties door het inbrengen van muren, volumes, patio’s en buitenterrassen. De verschillende ruimten, tuinen en sferen worden bereikt, begeleid en bewandeld vanuit de woning. Het zich voortbewegen in de woning door de opeenvolging van de ruimten verkrijgt een inherente en essentiële kwaliteit.

Tuin en boomgaard worden ter hoogte van de beglaasde middenzone deel van het interieur. De gesloten wanden worden op strategische plaatsen geopend en uitgesneden: om het landschap in te lijsten en het te dimensioneren, om het op maat van de woning te maken en omwille van het licht. Door verhullen en onthullen geven deze openingen iets prijs van de vertrekken en tuinen erachter. De patio’s zijn buitenkamers die bemiddelen tussen verte en nabijheid. De binnenvolumes zijn als grote meubels, die privacy en samenkomst, open en gesloten, binnen en buiten gradueren. Wat op het eerste gezicht een onlogische afmeting en verhouding lijkt, creëert bij nader inzien ontelbare relaties, zowel binnen als tussen binnen en buiten. Deze zijn niet enkel het gevolg van een louter functioneel verbindings- en relatiepatroon maar vloeien ook voort uit de behoefte aan intuïtieve en irrationele waarden en verlangens.

Programma
Woning
Status
Uitgevoerd
Thema
Het toekomen, Weerbarstig functioneel
Start ontwerp
1987
Start uitvoering
1990
Einde uitvoering
1992
Fotograaf
Lieve Blancquaert
Procedure
Private opdracht
Prijzen
Mies van der Rohe Award 1992: shortlisted
Technieken
Boydens Engineering
Stabiliteit
SCES

level 0

level -1