screenreader.back to home

Villa P in R

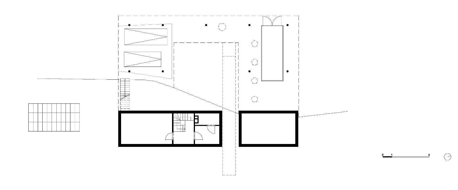
In een hellend en bebost terrein wordt een platte schijf ingebracht. Aan de voorzijde gedeeltelijk ingegraven en afwezig, aan de achterzijde opgetild en daardoor aanwezig. Door een uitsnijding in dit volume met een doorsteek naar de straat ontstaat een patio zonder vloer en ervaart men de natuurlijke helling zowel wanneer men zich naar de entree begeeft als vanuit de woning zelf. Het betreden van de woning gebeurt in verschillende etappen, vanuit de open publieke ruimte vóór de woning, over het hellende vlak van de nauwe doorsteek en al binnen het volume zelf: naar de open ruimte van de ommuurde patio zonder vloer, op de overdekte plaats vóór de entree, tot in de entree binnen met haar uitzicht op de kruinen van de bomen buiten. Vanuit deze entree worden links de woonvertrekken en rechts de slaapvertrekken bereikt.

Door de uitsnijding uit het oorspronkelijk volume ervaart men niet alleen de platte schijf maar kan men tevens de woning zien als een opgerolde sang van opeenvolgende functies. Deze staan onderling rechtstreeks met elkaar in verbinding, én onrechtstreeks, via de intermediaire buitenruimte. Het contact met deze tussenruimte en met de buitenwereld komt tot stand dankzij de uitsnijding in het volume en de uitgesneden vlakken van de ramen.

Door de terreinhelling als een aanwinst in het plan te betrekken, bevindt men zicht nu binnen op vier meter hoogte boven de grond, tussen het gebladerte en de vogelnesten, en herinnert men zich Italo Calvino’s prachtige verhaal ‘De baron in de bomen’.

Programma
Woning
Status
Uitgevoerd
Thema
Het toekomen, De leegte – tussen-ruimte
Start ontwerp
1991
Start uitvoering
1993
Einde uitvoering
1994
Fotograaf
Lieve Blancquaert; Jan Kempenaers
Procedure
In opdracht
Technieken
Boydens Engineering
Stabiliteit
Paul France

Level -1

Level 0