screenreader.back to home

Museum M

Leuven

Inkom Museum M

Ontwikkeling van museumsite, verbouwing en uitbreiding Museum M.

Het vroegere museum Vander Kelen-Mertens werd uitgebreid en gereorganiseerd in een algehele structuur en werd ‘M’ van Museum, Leuven. ‘M’ bewaart de bestaande collectie, stelt ze tentoon en brengt ze in relatie met hedendaagse kunst en tijdelijke tentoonstellingen.

Stad en museum

Bovenop het vervullen van de functies van bewaren, tonen en onderzoek van kunstwerken, streeft ‘M’ ernaar om een aantrekkelijke stedelijke plek te worden. Het museum is zorgvuldig ontworpen met een duidelijke visie en ambitie voor deze stadse locatie.
Het herinrichten van de stedelijke ruimte omvat het integreren van de bestaande kenmerken en het vaststellen van de scheidslijnen tussen de verschillende publieke ruimten.

Door de site te completeren, de bestaande museale ruimte uit te breiden en te verhelderen, streven we ernaar om de relatie tussen de stad en het museum te versterken, evenals de samenhang tussen verschillende museale activiteiten. Hierbij erkennen we de unieke identiteit van elke betrokken partij. ‘M’ is getransformeerd tot stadskamer.

Museum in en over de stad

De nieuwe toevoegingen op de site creëren een ordening en differentiatie van de stedelijke ruimte, waardoor er meerdere stedelijke kamers ontstaan. Dit zorgt ervoor dat de site op een specifieke manier benaderd kan worden en in verbinding staat met de omliggende stad. Het stadsweefsel biedt een unieke stimulans voor de ontwikkeling van het museum, terwijl het museum zelf op een eigenzinnige manier aan de stad gepresenteerd wordt.

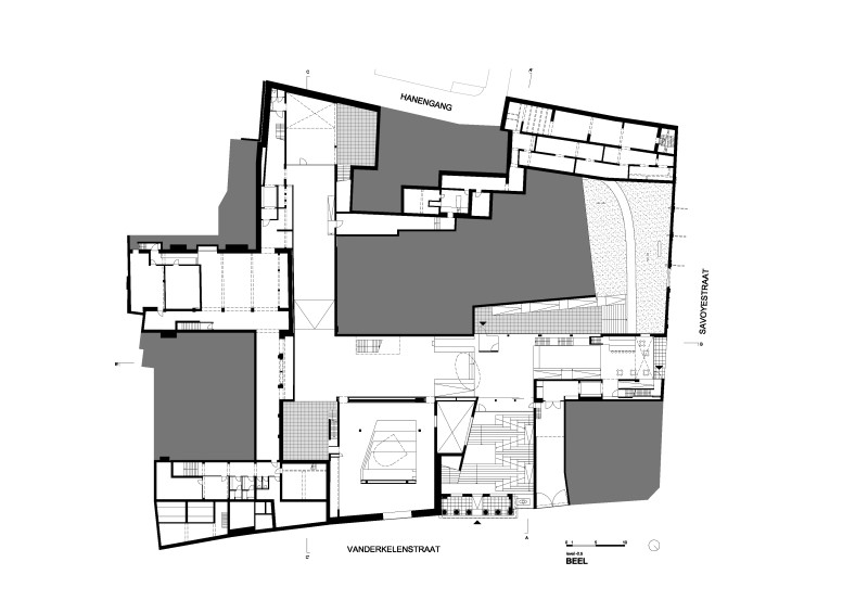
In de Vanderkelenstraat is de publieke ruimte afgebakend door de introductie van een verhoogd publieksplatform. Deze verhoogde zone fungeert als grens van de publieke ruimte en omkadert de bestaande portiek met Toscaanse zuilen. Deze portiek, als een gerecupereerd internationaal symbool voor een museum, fungeert als de formele toegang tot de site en het museum.
Het platform suggereert een nieuw stedelijke ruimtelijkheid waar het museum geïntroduceerd wordt en tentoonstelt. Hierdoor ontstaat er een overgangsgebied tussen de straat en het museum, dat fungeert als een ‘schone kamer’.
Terugliggend aan de straat werd een stedelijke wand ontwikkeld die enerzijds een nieuwe stedelijke ruimte begrenst en anderzijds nieuwe omkaderde relaties legt. Stad en museum worden in relatie tot elkaar gebracht.

Vanaf de Savoyestraat blijft het museum toegankelijk via de tuin en wordt het geïntroduceerd vanuit de straat door middel van een nieuw hoog volume.

De Hanengang is verbeterd door de informele toegang voor kunstenaars ‘Artists In Residence’ en workshops. Hierdoor wordt de unieke sfeer van deze stedelijke binnenplaats optimaal benut. Ook hier is een hoog volume geïntroduceerd, waardoor de grenzen van de site duidelijk zichtbaar worden in het stadsbeeld.

De ontsluitingen komen samen bij de centraal gelegen eik in de binnentuin. De museumtuin is ontworpen als ontmoetingsplek en maakt deel uit van een netwerk van informele doorgangen die typisch zijn voor Leuven. Deze passages verbinden diverse binnenplaatsen van colleges en universiteitsgebouwen en zijn verweven met het stadsweefsel.

De hoge osmotische werking van de site naar de stad toe staat geenszins een gecontroleerde en gemakkelijke afsluitbaarheid aan de randen van het domein in de weg.

Museum organisatie

De hoofdingang aan de Vanderkelenstraat bevindt zich een halve verdieping lager dan de straat. Om dit hoogteverschil te overbruggen, zijn er hellingen aangelegd, zodat de toegang voor mensen met een beperking gegarandeerd is. De verlaging van de ingang zorgt voor een belangrijk uitzicht op de achterliggende museumtuin en zorgt voor een naadloze aansluiting tussen de nieuwe museumzalen en de bestaande vloerniveaus van het academiegebouw. In de ontvangsthal bevinden zich de kaartverkoop en een gratis introductie tot het museum. Deze antichambre biedt een overzicht van het museumaanbod en biedt ook een zicht op het depot eronder.

Het depot strekt zich maximaal uit over de site en fungeert als een ondergrondse voedingsbron voor de museale ruimtes. De natuurlijke helling laat toe dit onderliggende depot plaatselijk op te nemen en te betrekken bij het tentoonstellen in aansluiting met het seminarielokaal. Ondanks dat musea meestal plaatsen zijn voor introspectie, zijn er zichten vanaf de meest openbare ruimtes toegestaan tot het depot.
Boven deze tussenverdieping zijn diverse museumlagen gecreëerd, waarbij gebruik is gemaakt van de bestaande vloeren die waar nodig vervolledigd of uitgebreid. Op twee strategische locaties worden de museale ruimtes bevoorraad, zowel vanuit het depot als vanuit de workshops.

Programma
Cultureel
Status
Uitgevoerd
Thema
Het toekomen, Teruggeven aan de maatschappij, Kruisbestuiving
Bouwkost
€15.800.000
Start ontwerp
2004
Start uitvoering
2006
Einde uitvoering
2009
Opdrachtgever
Autonoom Gemeentebedrijf Museum Leuven
Oppervlakte
13.000m²
Aannemer
CEI De Meyer nv
Fotograaf
Jan Kempenaers; Luca Beel; Dennis Gilbert
Plaats
Leuven
Procedure
Wedstrijd laureaat
Prijzen
Mies van der Rohe Award 2011: nominatie | Museumprijs & Publieksprijs Vlaanderen 2011 | Provinciale Prijs Architectuur & Patrimonium voor de toekomst 2011: nominatie | Prijs Bouwmeester 2011 | Architectuurprijs Leuven 2012: publieksprijs
Technieken
RCR-Studiebureau
Stabiliteit
Marcel Lavreysen

Siteplan

Niveau -0.5

Niveau +0.5