screenreader.back to home

School GITO

Tervuren

Nieuwbouw voor secundair technisch en beroepsonderwijs en deeltijds-volwassen onderwijs met een sportzaal voorzien op naschools extern gebruik.

Het nieuwe schoolgebouw werd ingeplant op een open plek aan de rand van het park van Tervuren. Het gebouw speelt in op het reliëf van de site met een hoogteverschil van ongeveer 5 meter. Dat bestaande reliëf wordt doorgetrokken over de opengewerkte binnenplaats van de school waardoor het hoger gelegen straatniveau in relatie komt te staan met het lagergelegen park. Reeds van bij het betreden van de schoolsite wordt het park ervaren. Het schoolgebouw positioneert zich in en op het natuurlijke reliëf en creëert een spel van visuele relaties en verticale circulatie tussen de verschillende delen.


Het nieuwe schoolgebouw combineert secundair onderwijs met een centrum voor volwassenonderwijs waarbij de opleidingen in dagelijks gebruik met elkaar verweven zijn. Door de doordachte schakeling van de verschillende programmadelen wordt er rondom de centrale binnenplaats een spel van dwars relaties gecreëerd. Zo wordt een gemeenschaps- en samenhorigheidsgevoel tussen leerlingen en leerkrachten bevorderd en wordt hun eigenheid tegelijk bewaard.

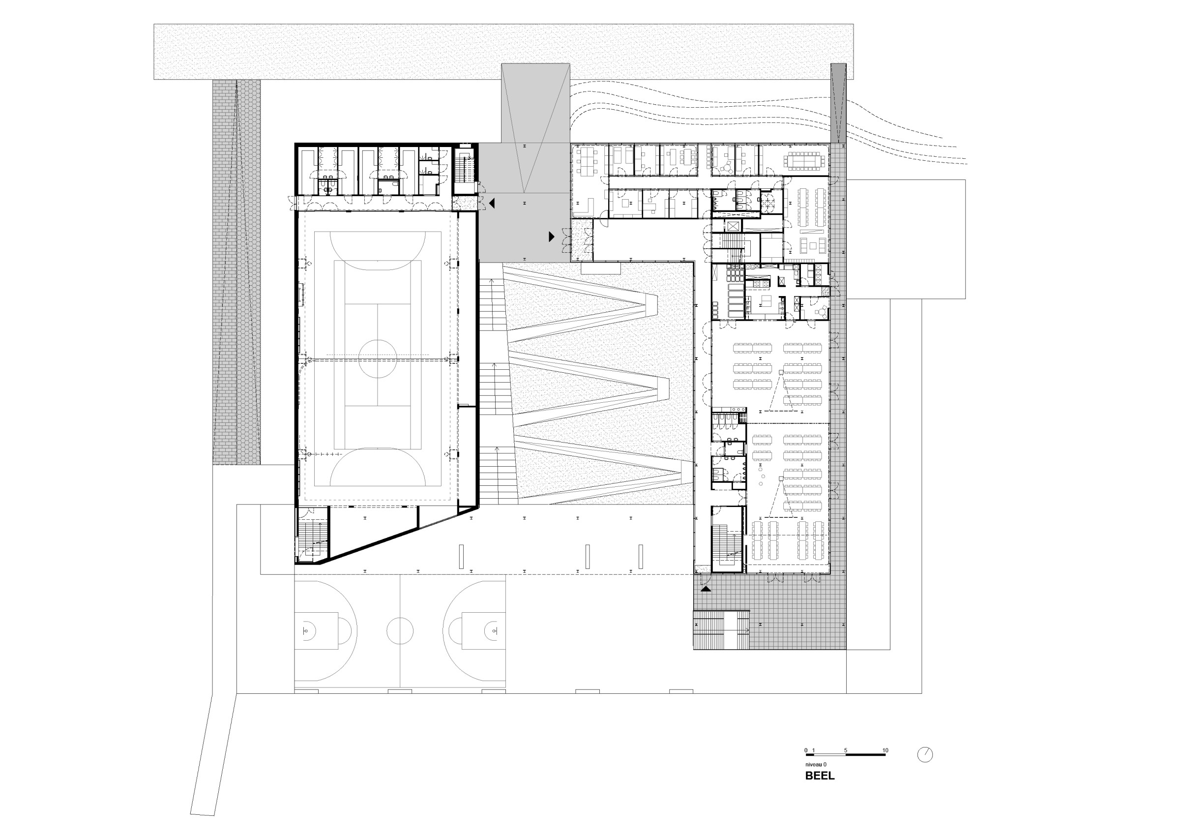
Op het onderste niveau bevinden zich de atelierruimtes, de fietsenberging onder de sporthal en de verharde speelplaats die deels overdekt wordt door de zuidvleugel. De sporthal is ‘gelegd’ op het bestaande reliëf waardoor deze ‘zweeft’ boven het lagergelegen landschap en een overdekking biedt voor de fietsenberging. Op hetzelfde niveau als de sporthal zijn de administraties en de refter gelegen. Op de eerste verdieping zijn de klaslokalen ontsloten door een rondgang die ook langs het mezzanine-niveau van de sporthal doorloopt. En op de bovenste verdieping loopt deze rondgang deels buiten waar een deel van het dak wordt ingezet als bruikbare buitenruimte of buitenklas.
Een doorgedreven rationele en modulaire opbouw van de prefab betonstructuur van de gevels zorgt voor een duurzame mogelijkheid tot herverdeling van de lokalen. Tussen de klassen onderling worden lichte akoestische in vulwanden voorzien die naargelang de noden op eenvoudige wijze een herverdeling van de lokalen toelaten.

De verschillende ruimtes, zoals gang, trap, klas, zaal of dak zijn telkens heel specifiek opgevat en vormen samen een geheel dat de leerlingen uitnodigt en stimuleert tot creatieve inbreng en zin voor experiment. Een brede toegangstrap wordt zo een tribune, het dak wordt een buitenklas,…

Programma
Onderwijs
Status
Uitgevoerd
Thema
Het toekomen, Circulair, Teruggeven aan de maatschappij
Bouwkost
€13.136.999
Start ontwerp
2011
Start uitvoering
2014
Einde uitvoering
2016
Opdrachtgever
Scholen van Morgen
Oppervlakte
8.099m²
Aannemer
STRABAG
Fotograaf
Luca Beel
Plaats
Tervuren
Procedure
Wedstrijd laureaat
Technieken
Ingenium
Stabiliteit
Studieburo Mouton
Akoestiek
D2S International

level 0